rozkładowe/przestronne/4 pokoje/winda/Orzechowa

Mieszkanie na sprzedaż
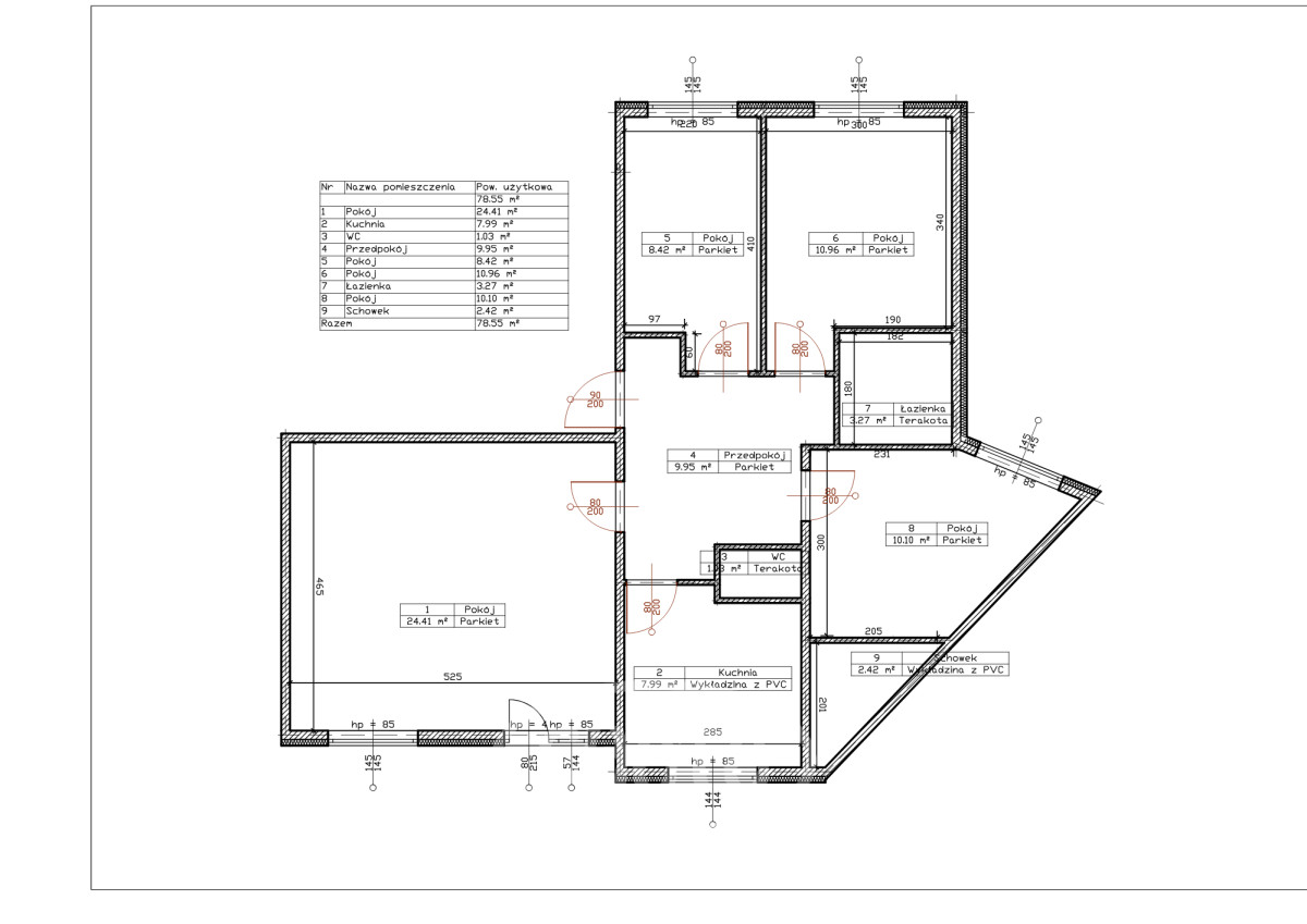
843 000,00 PLN , Pow. 78,55 m2
Typ nieruchomości:
Mieszkanie
Powierzchnia:
78,55 m2
Typ transakcji:
sprzedaż
Liczba pokoi:
4
Lokalizacja:
Wrocław Gaj , Orzechowa
Rok budowy:
1985
Piętro:
4 na 11
Numer oferty:
150941
Cena za m2:
10 732,02 PLN
Kupujący nie płaci prowizji.
Przestronne 4-pokojowe mieszkanie z dużym balkonem i piwnicą na osiedlu Gaj usytuowanym  pomiędzy pięcioma parkami. Mieszkanie znajduje się w 11 kondygnacyjnym bloku z windą.  Mieszkanie jest zadbane. Okna PCV, wymienione piony, nowe liczniki wody i energii, częściowo wymieniona hydraulika w łazience (nowe przyłącza pod pralkę). Odnowiona elewacja budynku. Miejsce postojowe ogólnodostępne pod blokiem.

Atuty mieszkania:
- świetna lokalizacja na zielonym, dobrze skomunikowanym osiedlu Gaj - miejscu, gdzie niczego nie brakuje ! 
- duże i przestronne  mieszkanie z potencjałem
- 4 niezależne pokoje
- duży balkon z pięknym widokiem na Ślężę.
- winda w budynku.

Nieruchomość składa się z:
- salonu z wyjściem na balkon (24,41 m2)
- pokoju (10,96 m2), 
- pokoju (8,42 m2) 
- pokoju (10,10 m2)
- kuchni z oknem (7,99 m2)
- pomieszczenia gospodarczego/spiżarni (2,42 m2)
- łazienki z wanną (3,27 m2)
- toalety (1,03 m2)
- przedpokoju (9,95  m2)
Do mieszkania przynależy balkonpiwnica.

Lokalizacja:
Mieszkanie położone jest na zielonym osiedlu Gaj. 
Pomiędzy budynkami znajduje się bardzo dużo przestrzeni z zagospodarowanymi skwerami, placami zabaw oraz boiskami. 
Piękne położenie aż 5 parków w bliskiej okolicy: (Park Skowroni, Park Wschodni,Park Południowy, Park Tarnogajski i Park Brochowski)
Bliski dostęp do basenów:  
Aquapark Borowska 2 km, Aquapark Brochów 4 km 
W okolicy sklepy: 
Ferio Gaj ok. 800 m, Rossmann, Lidl, Biedronka, Hala Kupców Perła, Centrum Handlowe Gaj, 
Placówki edukacyjne:
Uniwersytet Ekonomiczny, szkoły podstawowe, przedszkola, żłobki  
Placówki medyczne:
Szpital Uniwersytecki, Przychodnia Krynicka oraz prywatne gabinety
Liczne punkty usługowe:
banki, apteki, piekarnie, sklepy Żabka itp.
Doskonała komunikacja:
bliski dostęp do przystanku tramwajowego i autobusowego. Świetne połączenie z centrum i pozostałymi częściami miasta. Odległość do rynku ok. 5 km, a do Dworca Głównego  ok 3 km 

Cena: 843  000 zł

Zapraszam na prezentację
Justyna Semczuk tel. 602 570 600
CHATA Nieruchomości
  Informacje ze świadectwa charakterystyki energetycznej:
- wskaźnik rocznego zapotrzebowania na energię użytkową (EU): 75.36 kWh/(m2 · rok).
- wskaźnik rocznego zapotrzebowania na energię końcową (EK): 139.36 kWh/(m2 · rok).
- wskaźnik rocznego zapotrzebowania na nieodnawialną energię pierwotną (EP): 117.03 kWh/(m2 · rok).
- jednostkowa wielkość emisji CO2 (E CO2): 0.0471 t CO2/(m2 · rok).
- udział odnawialnych źródeł energii w rocznym zapotrzebowaniu na energię końcową (U OZE): 0.00 %.
Nieprawidłowy adres E-mail